カテゴリ: 事例解説
作成日:2025年12月01日(月)
こんにちは。
ご訪問下さいましてありがとうございます。
DREAM INTERIORでは、空間そのものをお客様のライフスタイルに合わせて“仕立てる”造作家具のご提案を行っています。
今日はその一例として、お料理上手なお客様がご友人をご自宅にお招きしてパーティーを楽しまれる際の、ダイニング横のディスプレイ棚をご紹介します。
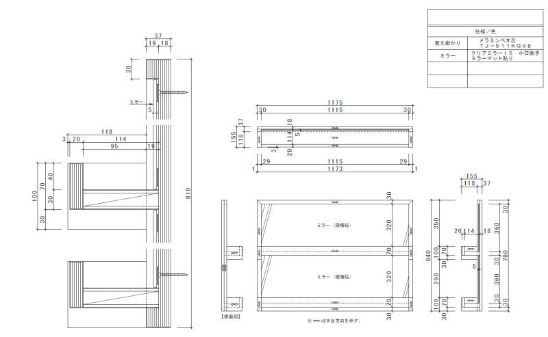
【造作家具事例】ホームパーティーを格上げするダイニング横のオーダー棚 ーお酒を楽しくディスプレイー
ご友人を招く時間を、もっと特別に
「来客時にすぐにお酒を出せたら、もっとスマートにおもてなしできそう。」
そんな想いから、ダイニング横の壁面に棚を作る計画がスタートしました。
近くにはワインセラーも設置されるので、その高さに干渉しないこと。
そして、立ったままでも使いやすく、ぶつからないような高さに。
さらに今回はもうひとつ大事な条件がありました。
“猫ちゃんの安全”です。
可愛いご家族が元気に跳ね回る空間だからこそ、
万が一棚の上に登ってしまっても、ボトルが倒れたり、怪我の心配がないように。
高さや棚の立ち上がり寸法を細かく調整し、安心してお使いいただける設計としました。


世界観を守る、控えめな存在感
ダイニングの壁面には、インパクトのあるGUCCIの壁紙を施工させて頂いていました。
そちらを引き立たせるために、棚設置予定の壁面は深い色へと貼り替えており、
空間全体に“夜のラグジュアリー”を纏わせています。
そこで棚そのものは、
黒を基調にしたシンプルでシックな造形に。
主役はあくまで、お酒のボトルたち。
背面に貼ったクリアミラーが光を拾い、
華やかなアイテムをきれいに引き立ててくれます。
また、リビング側からもよく見える位置のため、
側面には少しだけデザイン性を加え、
空間に馴染みながらも、
目にとまる上質なアクセントとなるよう工夫しました。
素材は、汚れに強くお手入れがしやすいメラミン化粧板。
毎日の生活の中でもストレスなく使える仕上がりです。
「飾る予定のボトル」から寸法を決める
造作家具の魅力は、
置きたいもののサイズに“完璧にフィットする”こと。
今回は、
飾りたいお酒やグラスの寸法をヒアリングし、
奥行き・高さを1mm単位で調整しました。
バーカウンターのようなステンレス製のポール設置も検討しましたが、
最終的には全てボックス形状に。
お客様と対話を重ね、
理想のバランスへと仕立てています。
造作家具の職人さんとも打ち合わせを重ねてデザインやサイズを決めていきます。

寸法や形状の相談

シンプルな形状でも、ひとつひとつが唯一無二の家具。
しっかりと図面を作成して検討し製作します。
CGパースでお客様とイメージを共有します。


少し明るめの木目も検討しましたが最終的には壁に馴染むかなりダークなブラウン木目で決定。

空間を、もっと愉しむために
ただ収納を作るのではなく、
生活のシーンが美しく流れるように整えること。
それが、DREAM INTERIORの造作家具です。
この棚が完成してから、
お客様はますます、ご友人を招く時間を楽しんでいらっしゃるそう。
日々の愉しみを一層使いやすく心地よいものにするために。
造作家具は細やかなご希望を叶えられるアイテムです。
ダイニングスペースの当初の写真はこちら

壁紙を替えて

造作棚を設え、カーテンをお納め、ダイニングテーブルが入りました。

最終的にはこちらのようになりました。
※賃貸物件での仮住まいでしたので、すぐお引越しされてしまい、お写真を撮ることができなかったのでCGにてご紹介します。
インテリア好きなお客様の毎日が豊かになるお手伝いが出来てとても光栄でした!




DREAM INTERIORのサービス紹介
DREAM INTERIORでは、20年以上の経験を活かした高級感のあるインテリアコーディネートをご提供しています。
お客様一人ひとりの個性を大切にし、唯一無二の上質な空間づくりをお手伝いさせていただいております。
CGパースによる分かりやすいプレゼンテーションで、完成イメージを事前にご確認いただけるのも特徴の一つ。
高級家具メーカーとの豊富なネットワークを活かし、お客様のご要望に最適な家具をご提案いたします。
よくいただくご質問(FAQ)
- Q. コーディネート期間はどのくらいかかりますか?:A. 通常3ヶ月〜1年程度ですが、エグゼクティブプランでは最短1ヶ月での完成も可能です。
- Q. 予算の相談はできますか?:A. はい、初回無料相談にて詳しくお聞かせください。ご予算に応じたプランをご提案いたします。
- Q. アフターサービスはありますか?:A. メーカー保証期間に準じた保証とメンテナンスサービスをご提供しています。
- Q. 対応エリアを教えてください:A. 東京都内・関東近郊中心ですが、条件により全国ご対応可能です。
- Q. リノベーションは可能ですか?:A.はい、可能です。ご希望に合わせたプランから施工まで一貫してお承り致します。
高級感のあるインテリアコーディネートをお考えの方は、ぜひお気軽にDREAM INTERIORまでご相談ください。
あなただけの特別な空間づくりをサポートいたします。
4月にミラノで開催された家具の展示会
ミラノサローネ
ミラノデザインウイーク
についてInstagramのリールにて投稿をしています。
いろいろなブランドを紹介しているので、是非ご覧ください。
Instagram
最新情報を更新していますので、フォローお願いします (^-^)

最新の自己紹介記事はこちらです。
サービスの概要はこちらです。
もしお時間ありましたら、お付き合い下さいm(__)m
自分史上最高のインテリアとは?についての記事はこちらから。
↓
東京でインテリアコーディネートの依頼・相談なら「DREAM INTERIOR」へ | ”自分史上最高のインテリア”は”普通じゃないインテリア”
インテリアコーディネーターとしての思いはこちらから。
↓
東京でインテリアコーディネートの見積依頼なら「DREAM INTERIOR」へ | なぜ、大手のマンションデベロッパーで大きな仕事に携わっていたのに独立して”自分史上最高のインテリア”を提案するのか? (dream-interior.jp)
:::::::::::::::::::
インテリアコーディネータ―資格を取得後、
設計事務所やデザイン会社、にてモデルルーム設営の仕事をしていました。
2級建築士取得後、不動産デベロッパーでマンションの商品企画の仕事を経験した後、
2015年に独立し、それまでの経験を生かしながら個人邸のインテリアコーディネートを手掛けています。
お客様の唯一無二の個性をいかした、”自分史上最高のインテリア”を作ることに特化したサービスを行っています。
毎年ミラノで開催される、家具のパリコレともいえる、ミラノ・サローネにも2006年から行っていますので、
イタリア本国のショップ事情通。
・インテリア提案から、家具販売、施工までワンストップで承る、数少ないフリーランスコーディネーター。
・CGで室内空間を表現するのが得意で、細かい作業も大好き。
・”家事は苦手・時短が大好き系”のインテリアコーディネーター。